16
$2,550 Rent
Listed 11 hours ago
612 - 21 LAWREN HARRIS SQUARE
· 1+1
· 1.0
· 0
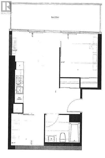
· 500 - 599
Key Facts
Key facts for 612 - 21 LAWREN HARRIS SQUARE
Property Type
Condo, Apartment
Parking
Garage: No, 0 parking
MLS #
C12475042
Size
500 - 599 sqft
Basement
-
Listed on
-
Lot size
-
Tax
-
Days on Market
-
Year Built
-
Maintenance Fee
-
Description
"Harris Square!" The newest addition to the vibrant River City community! This stylish 1+Den suite feels just like a 2-bedroom, featuring soaring 9'8" exposed concrete ceilings, a signature concrete accent wall, and floor-to-ceiling, wall-to-wall windows opening to a full-length balcony with two wal...kouts and stunning city views. Enjoy engineered hardwood floors throughout, a modern kitchen, and professionally installed window blinds. Exceptional building amenities include a fully equipped fitness centre, rooftop terrace and party room, guest suites, and more. Steps to King & Queen streetcars, Corktown Common, Distillery District, and Don River trails, with easy access to the DVP. One storage locker included. A perfect home for professionals or couples seeking stylish, quiet city-core living. (id:10452)
Similar Properties (No results)
Room Types
Den
-
Dimensions 2.47 m x 2.44 m
64.87 sqft
Dining room
-
Dimensions 6.16 m x 3.57 m
236.71 sqft
Kitchen
-
Dimensions 6.16 m x 3.57 m
236.71 sqft
Listing courtesy of: ROYAL LEPAGE TERREQUITY YMSL REALTY
This REALTOR.ca listing content is owned and licensed by REALTOR® members of The Canadian Real Estate Association.